Redfern is a socially active community with high demand for work and study. However, a crisis for flexible housing is limited by the housing heritage and space total.

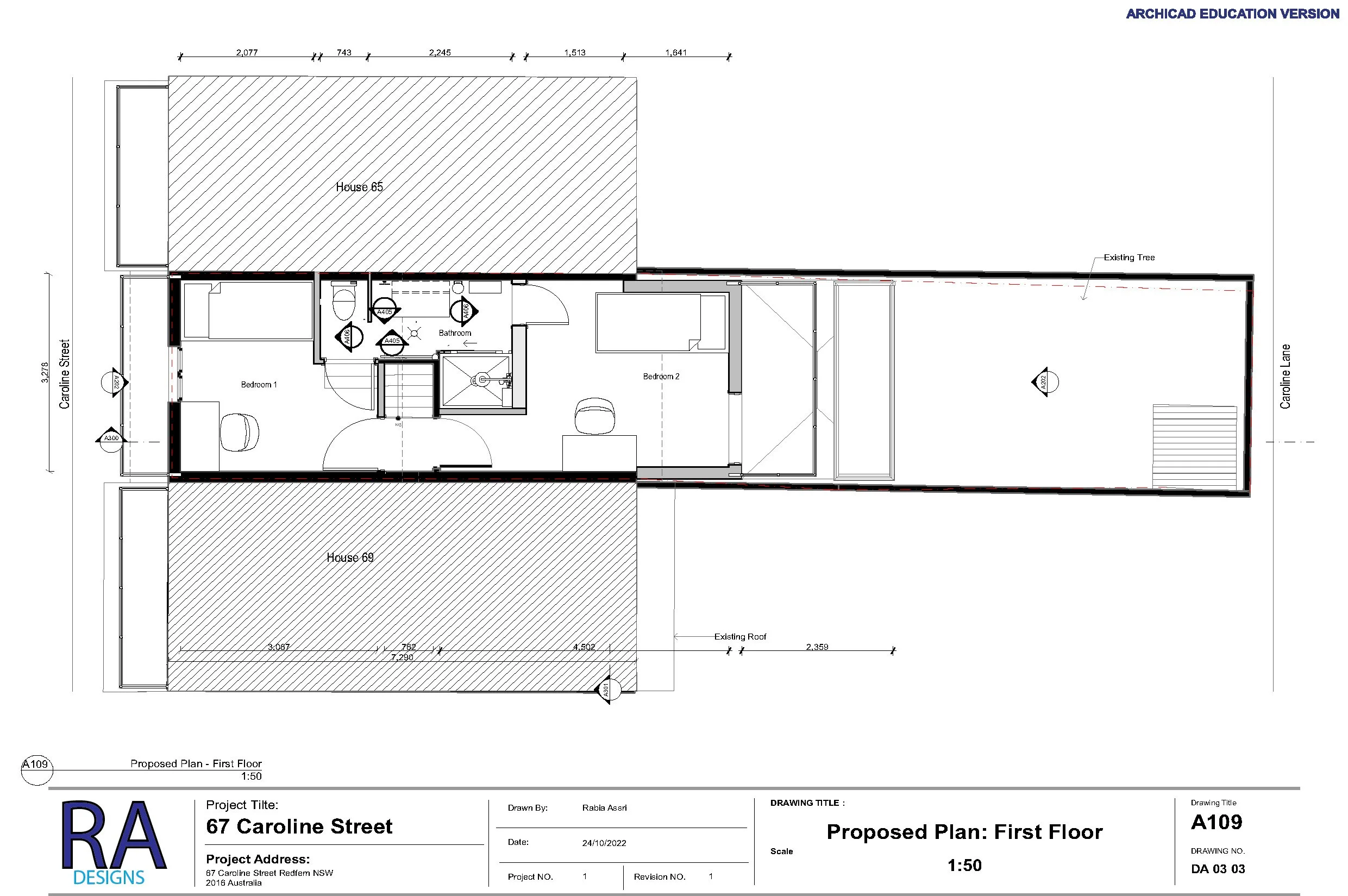
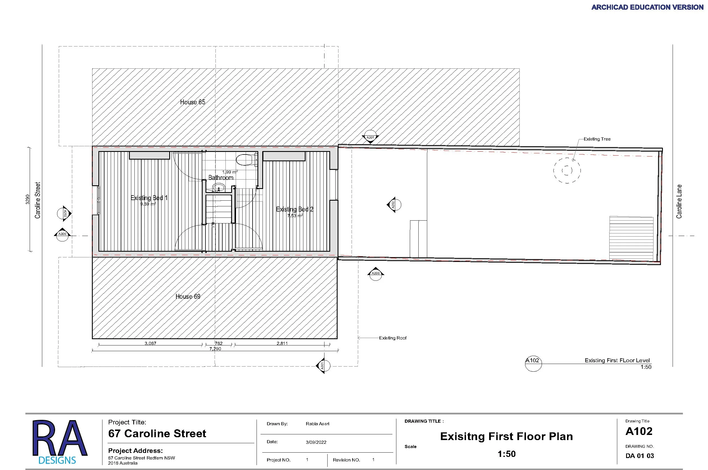
This design tender package is for a tiny terrace house in Redfern that currently has a kitchen, a living area, two bedrooms, a small bathroom and a courtyard renovated into a custom-built share house for three people working or studying in the area. It includes measured drawings, the development of integrated and cross-referenced architectural drawings, including plans, elevations, lighting, bathroom and kitchen layouts, shadow diagrams and materials + equipment schedules.

Location: Caroline Street, Redfern
Year: 2022
Type: Solo Project
Tutor: Vesna Trobec
Category: Residential Renovations

SURRY HILLS - MINI TERRACE

Previous
Previous

2022 DHARAWAL TRADITIONAL HEALING CENTRE

Next
Next

2021 - HAMLET IN CORPORATE